Apple’ın bu yıl tanıtacağı iPhone 17 Pro modeliyle ilgili yeni sızıntılar, cihazın iç donanımında köklü değişikliklerin yapıldığını ortaya koydu. Paylaşılan görsellerde özellikle batarya yapısı ve yerleşiminde dikkat çeken güncellemeler göze çarpıyor.
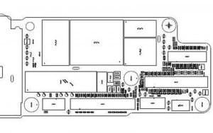
Apple’ın bu yılın sonbaharında tanıtmayı planladığı iPhone 17 Pro modeliyle ilgili sızıntılar, cihazın iç yapısında dikkat çekici değişikliklerin yolda olduğunu gösteriyor. Henüz tanıtımına aylar olmasına rağmen ortaya çıkan yeni görseller, özellikle batarya tasarımında yapılan güncellemeleri gün yüzüne çıkardı. Görselleri paylaşan kaynaklara göre Apple, bu yeni modelde ısıl verimliliği artırmak ve tamir edilebilirliği geliştirmek için birtakım mühendislik hamleleri yapmış gibi görünüyor.

Sızdırılan görüntülerde dikkat çeken ilk yeniliklerden biri, bataryanın çevresine eklenen çelik koruma yapısı. Bu metal kaplama sayesinde cihazın yoğun işlem gücü gerektiren anlarda – örneğin oyun oynarken ya da yüksek çözünürlüklü video çekerken – daha serin çalışması hedefleniyor. Ayrıca batarya üzerinde yer alan mantık kartı kesitinin küçüldüğü fark ediliyor. Bu da Apple’ın cihaz içinde daha verimli bir alan kullanımı için optimize edilmiş bir yerleşim planı üzerinde çalıştığını düşündürüyor.
Yeni batarya yapısında bir diğer dikkat çeken detay ise değiştirilebilirlik açısından. Kullanılan yeni yapışkan katman sayesinde bataryanın çıkarılması eskisine göre çok daha kolay hale gelmiş. Bu değişiklik, Avrupa Birliği başta olmak üzere birçok bölgede yürürlüğe giren kullanıcı dostu tamir yasalarının bir sonucu olarak değerlendiriliyor.
Cihazın eSIM teknolojisiyle çalışan ABD versiyonunda fiziksel SIM kart yuvası bulunmadığı için elde edilen ekstra alan, daha büyük bir batarya muhafazası için değerlendirilmiş. Buna karşılık, fiziksel SIM kart desteği sunan diğer varyantlarda bu boşluk SIM tepsisiyle doldurulmuş. Yine de iki modelin de aynı batarya kapasitesine sahip olacağı belirtiliyor.
Donanım tarafındaki bu değişikliklerin yanı sıra kamera sisteminde de önemli bir yenilik test aşamasında. Apple’ın 8 kat optik yakınlaştırma sunan bir telefoto lens üzerinde çalıştığı konuşuluyor. Bu lensin, özellikle Pro serisini profesyonel fotoğrafçılık deneyimi isteyen kullanıcılar için daha cazip hale getirmesi bekleniyor.
iPhone 17 Pro’nun, Apple’ın geleneksel tanıtım takvimine sadık kalınırsa Eylül 2025’in ikinci haftasında sahneye çıkması bekleniyor. Her ne kadar pil kapasitesinde büyük bir sıçrama olmayacağı söylense de iç tasarımdaki bu iyileştirmeler, Apple’ın iPhone 17 Pro için performans, dayanıklılık ve kullanıcı dostu tasarım konularına odaklandığını ortaya koyuyor. Yeni sızıntılar, şimdiden bu modelin Apple için önemli bir evrim adımı olacağının sinyallerini veriyor.






